
手動旋轉液壓小吊機介紹:
* 手動旋轉液壓小吊機采用手動液壓控制系統,配備高性能快起油缸,吊臂支持伸縮調節,設有五檔可調檔位,適應多種不同工況需求;
* 手動旋轉液壓小吊機為配重式設計,依托平衡重結構與重載設計,可配置配重,操作穩定可靠;
* 手動旋轉液壓小吊機支持機身360°旋轉,操作便捷,廣泛適用于多種作業場景;
* 手動旋轉液壓小吊機安全性能優異,配備剎車系統、鎖定裝置等多重安全防護,保障作業過程安全可靠。

手動旋轉液壓小吊機應用領域:
手動旋轉液壓小吊車廣泛應用于倉儲、制造業、機械加工、工位吊運及物流運輸等各類需起重吊裝的場合。

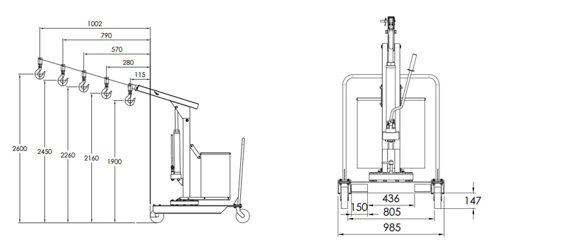
手動旋轉液壓小吊機尺寸:


手動旋轉液壓小吊機參數:
型號 | LLH-R05-A |
每檔對應載重(kg) | 550 | 450 | 350 | 250 | 150 |
每檔對應吊鉤離地高度(mm) | 1900 | 2160 | 2260 | 2450 | 2600 |
每檔吊鉤高度對應的吊鉤到前段距離(mm) | 115 | 280 | 570 | 790 | 1002 |
吊臂水平狀態吊鉤離地高度(mm) | 1540 | 1540 | 1540 | 1540 | 1540 |
吊臂水平狀態吊鉤到前端距離(mm) | 370 | 660 | 953 | 1243 | 1530 |
車身尺寸:長寬高(mm) | 1400*985*1600 |
腳輪直徑(PU)mm | 200 |
凈重(kg) | 612 |
溫馨提示:因產品不斷升級,當手動旋轉液壓小吊車外形與參數變更時,均以實物為準,恕不另行通知。

手動旋轉液壓小吊車質保承諾:
手動旋轉液壓小吊車屬于煙臺開發區龍海起重工具有限公司旗下品牌龍升產品,產品保質周期為1年(易損件除外),在產品保質周期內正常使用的情況下出現的質量問題,我公司可提供免費維修、免費更換配件、如因質量問題維修或更換配件仍然不能達到正常使用,可免費更換主機(產品附件以及易損件除外)由此產生的運輸,維修費用由我公司承擔。非質量問題我公司將收費處理,所產生的運輸、維修等費用由客戶承擔。
溫馨提示:凡是在我司購買的手動旋轉液壓小吊車嚴禁客戶私自改裝,改裝后的產品不享受售后質保,有問題需客戶自行承擔。